Overholdelse af alle brandkrav
Brandklasse 2
Firewise hjælper med at opnå fuld overensstemmelse med brandklasse 2-kravene.

Brandklasse 2 omfatter byggeri, hvor brandsikringen sker ud fra præ-accepterede løsninger. Der kan i brandklasse 2 kun fraviges i begrænset omfang fra de præaccepterede løsninger. Byggeri i brandklasse 2 er endvidere kendetegnet ved, at brandsikringen foretages på baggrund af tekniske løsninger, som der er erfaringer med fra tidligere opført tilsvarende byggeri.
Vi kan udarbejde dokumentation på vegne af entreprenøren, arkitekten eller ingeniøren.
I brandklasse 2 udarbejdes dokumentation for følgende:
Udarbejdelse af ansøgningsmateriale:
- Dokumentation for brandklasse
- Redegørelse for ITT-forhold
- Brandsituationsplan
- Brandplaner
- Kontrolplaner og rapporter for design
- Starterklæring
Udarbejdelse af hovedprojekt
- Brandstrategi
- Funktionsbeskrivelse
- Kontrolplaner og rapporter for projektering
- Kontrolplaner og rapporter for udførelse
- Kontrolregistreringsrapporter for projektering
- Kontrolregistreringsrapporter for udførelse
Aflevering og ibrugtagning
- DKV-plan
- Brandteknisk kontrolrapport
- Sluterklæring
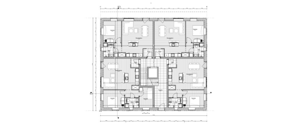
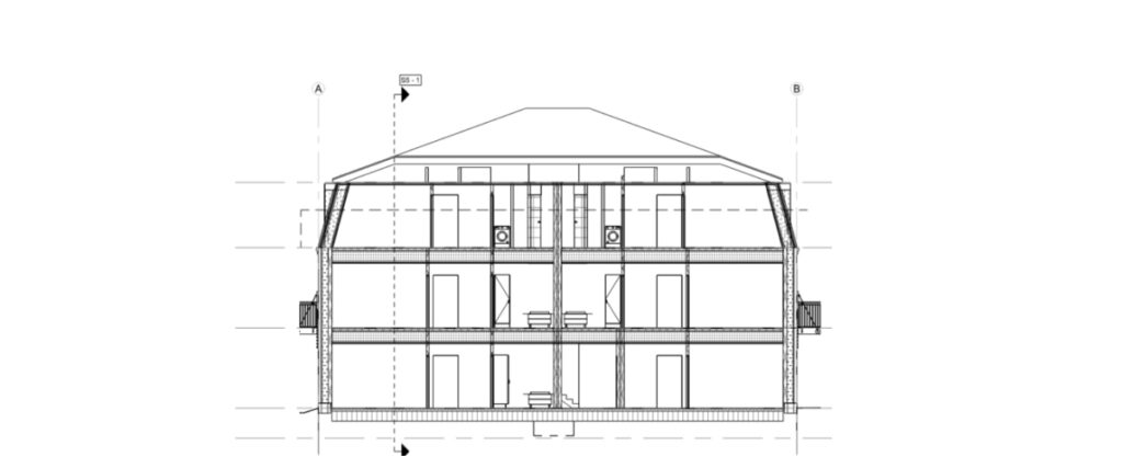
Kundecase: Brandklasse 2
Eksempel på udført arbejde inden for brandklasse 2:
Etageboligejendom på 3 etager i det Odenseanske.
Arkitekt: Archidea



BRANDSikkerhed gjort enkelt
Brandsikkerhed, kompetence og tilgængelighed – i hvert projekt
Hos Firewise arbejder vi målrettet for at skabe trygge og lovmedholdelige byggeprojekter. Vores certificerede rådgivere kombinerer faglig ekspertise med praktisk erfaring, så du kan føle dig sikker gennem hele processen – fra planlægning og brandplaner til endelig myndighedsgodkendelse, implementering, udannelse og løbende kvalitetskontrol.
100 %
Certificerede brandrådgivere
Alle vores rådgivere er certificerede.
Vi leverer sikker og kompetent brandrådgivning.
100 %
Faglighed og kompetence
Vores rådgivere kombinerer teoretisk viden med praktisk erfaring, og sikrer solide løsninger i alle projekter.
100 %
Tryghed i rådgivningen
Vi guider dig sikkert gennem alle faser af projektet. Du kan føle dig tryg med vores kompetente rådgivning.
100 %
Ansvar for projektet
Vi tager ejerskab af brandsikkerheden i dit projekt. Alt leveres i overensstemmelse med lovkrav og standarder.
Tag Firewise med på råd
Stor erfaring indenfor industri, pharma og laboratorieindretning
Firewise har stor erfaring inden for bygge- og beredskabslovgivning og samarbejder med flere store ingeniørhuse.
… Men, intet projekt er for stort eller for småt.

